York Mansions, Prince of Wales Drive, SW11

Radstock Property > For Sale > York Mansions, Prince of Wales Drive, SW11

YORK MANSIONS, PRINCE OF WALES DRIVE, SW11

£1,500,000

A wonderful three double bedroom flat on the fourth floor (lift) of York Mansions with rarely found double aspect views.

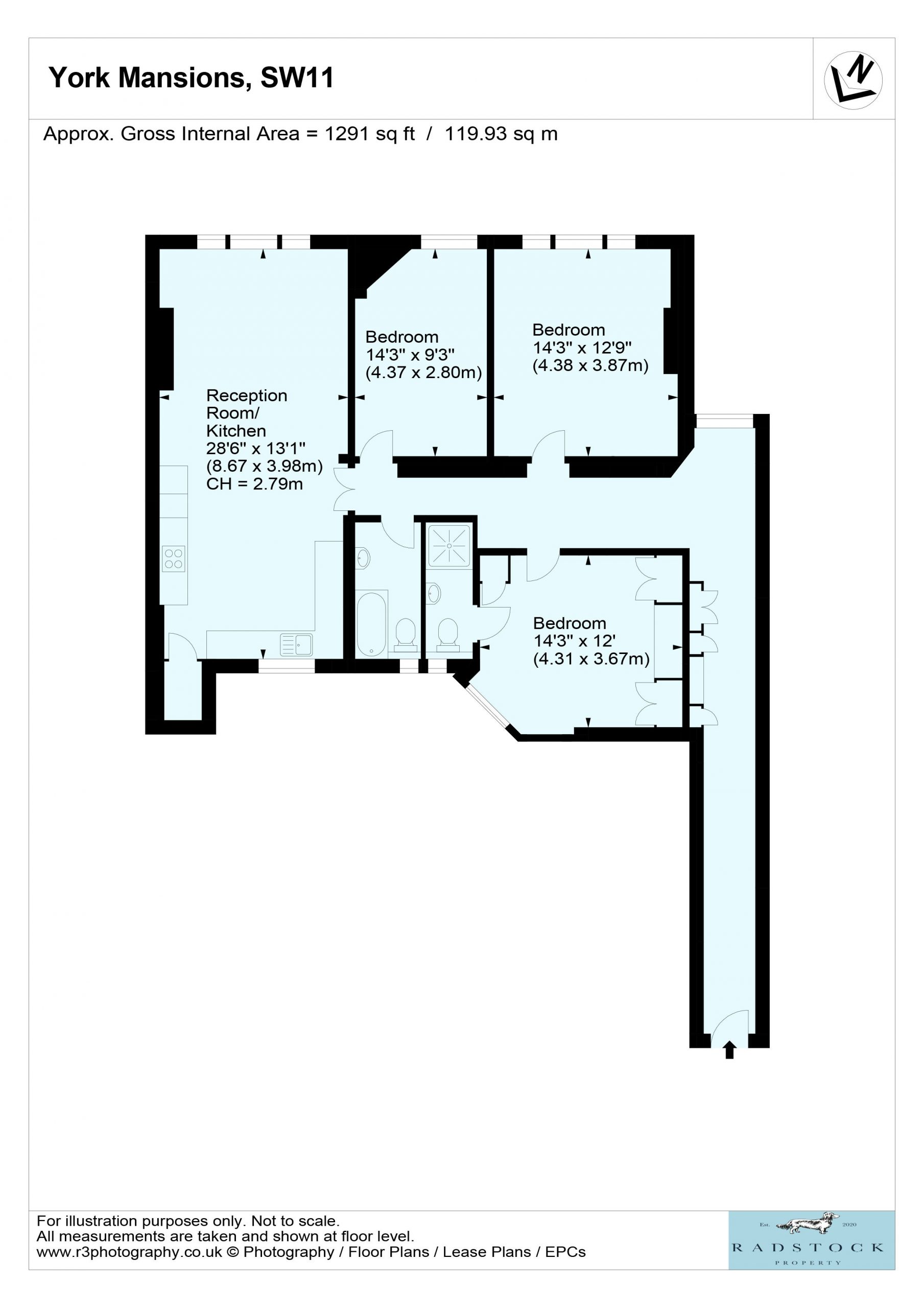
This beautifully presented apartment has a stunning lateral kitchen/reception room which has both park views from the kitchen and a light southerly aspect from the reception room. The kitchen is well appointed with views over Battersea Park and the reception room has a wonderful south facing outlook. There is a large master bedroom with en-suite bathroom and built-in storage. Two further double bedrooms are served by a family bathroom. 

Bedrooms: 3
Bathrooms: 2 (1 en-suite)
Reception Rooms:
1
Size: 1291 sq ft
Parking: Resident Parking Permit
EPC Rating: F (Potential C)
Tenure: Share of Freehold
Service Charge: £6,602pa (to include a sinking fund)
Council Tax Band:
E (Wandsworth Borough Council)

ADDITIONAL INFORMATION

This special home is located in York Mansions on Prince of Wales Drive, located to the south of Battersea Park with its 250 acres of recreation space. Chelsea is a short walk, as are the facilities of the Battersea Power Station development. Queenstown Road overland has direct access to Waterloo and Battersea Park overland takes you straight to Victoria. The Northern Line extension will transport you to Bank station in approximately fifteen minutes.