Wix’s Lane, SW4

Radstock Property > London (FOR SALE) > Wix’s Lane, SW4

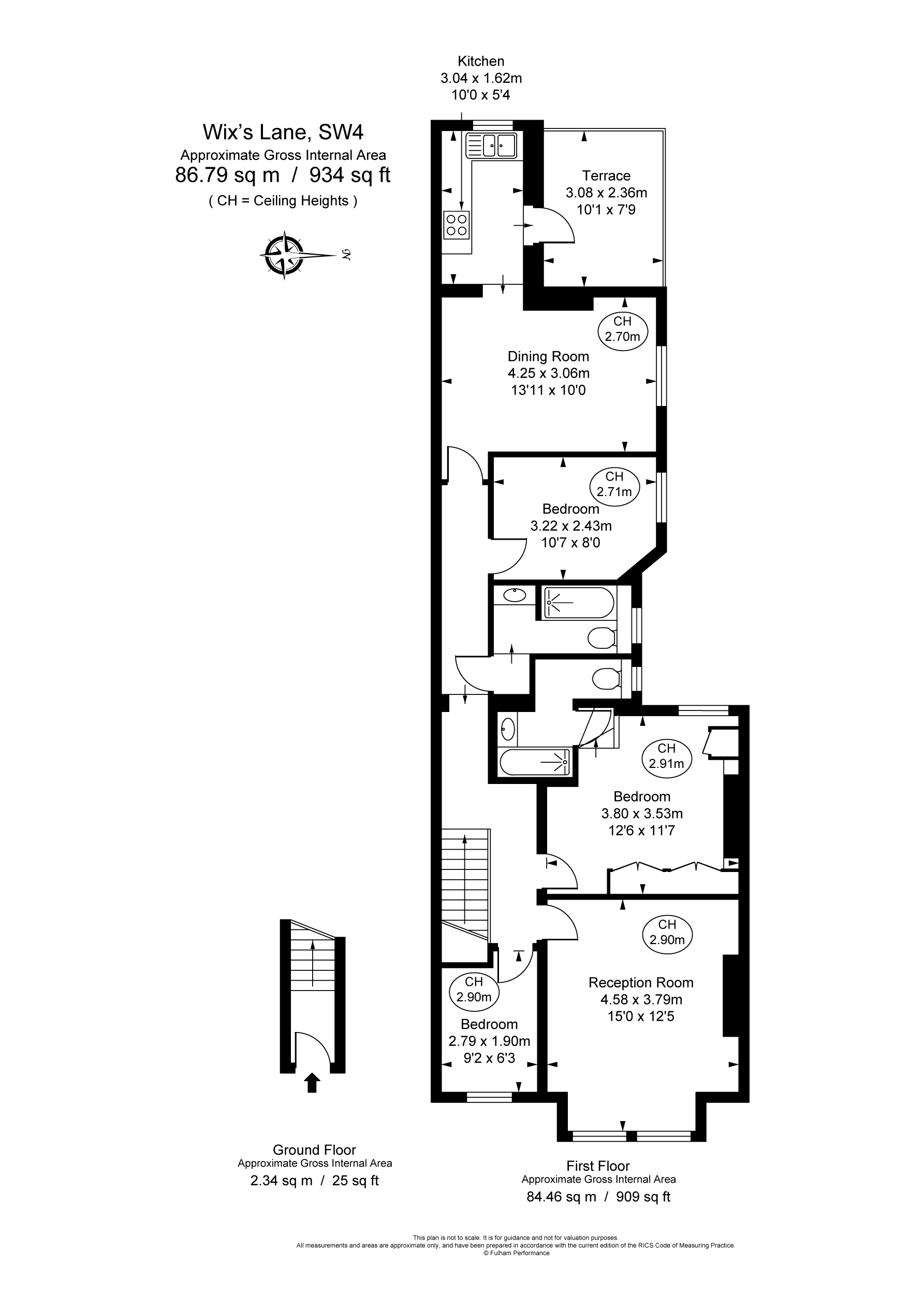
WIX’S LANE, SW4

£750,000

A three bedroom maisonette with its own front door, a roof terrace and potential to extend subject to the necessary planning consents.

The flat is naturally bright throughout and has two double bedrooms served by an en suite shower room and separate bathroom and a third bedroom/study. There is a good-sized reception room, dining room and the kitchen which has access to the roof terrace. There is great scope to update the property and also extend into the loft subject to the necessary planning consents.

Bedrooms: 2 to 3
Bathrooms: 2 (1 en-suite)
Reception Rooms:
1
Size: 934 sq ft
Outside Space: Roof Garden
Parking: Resident Parking Permit
EPC Rating: C (Potential C)
Tenure: Freehold
Council Tax Band:
D (Wandsworth Borough Council)

ADDITIONAL INFORMATION

Wix’s Lane is a popular residential street close to Clapham Common. There are good transport links from Clapham Common Underground (Northern Line) and Clapham Junction (Mainline). The shops, bars and restaurants of Clapham Old Town, Northcote Road and Clapham Junction are all close by.