Trefoil Road, SW18

Radstock Property > Sold > Trefoil Road, SW18

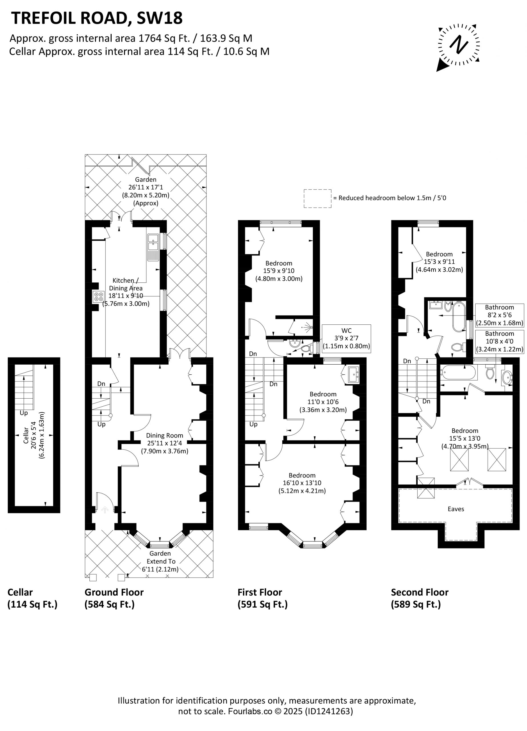
TREFOIL ROAD, SW18

£1,200,000

A wonderful opportunity to acquire this unmodernised five bedroom terraced family house. The property provides a blank canvas for an incoming purchaser to modernise and style the property to suit their individual needs and specifications.

Whilst being unmodernised the feel and light of the property is particularly appealing. The loft has already been converted and provides a fifth bedroom with en-suite bathroom. In addition the property benefits from a south facing garden. The remaining accommodation is arranged over three floors with the ground floor providing a 25’11 double reception room, a kitchen/breakfast room opening out onto the garden and access to a cellar which runs under the entrance hall. The first and second floors comprise four additional bedrooms and a bathroom. The house retains many of the period features and is being sold chain free.

Bedrooms: 5
Bathrooms: 2 (1 en-suite)
Reception Rooms:
2
Size: 1,764 sq ft
Outside Space: Garden
Parking: Resident Parking Permit
EPC Rating: D (Potential B)
Tenure: Freehold
Council Tax Band:
G (Wandsworth Council)

ADDITIONAL INFORMATION

Trefoil Road is a popular residential street that sits just to the west of the northern part of Wandsworth Common. Wandsworth Town station provides the nearest mainline transport with Clapham Junction station also nearby. The area is popular with families due to the choice of schooling and general residential feel.