Swinburne Road, SW15

Radstock Property > London (FOR SALE) > Swinburne Road, SW15

SWINBURNE ROAD, SW15

£950,000

A perfectly presented and naturally bright four bedroom end-of-terrace house with a large south facing garden, located within the Dover House Conservation Area.

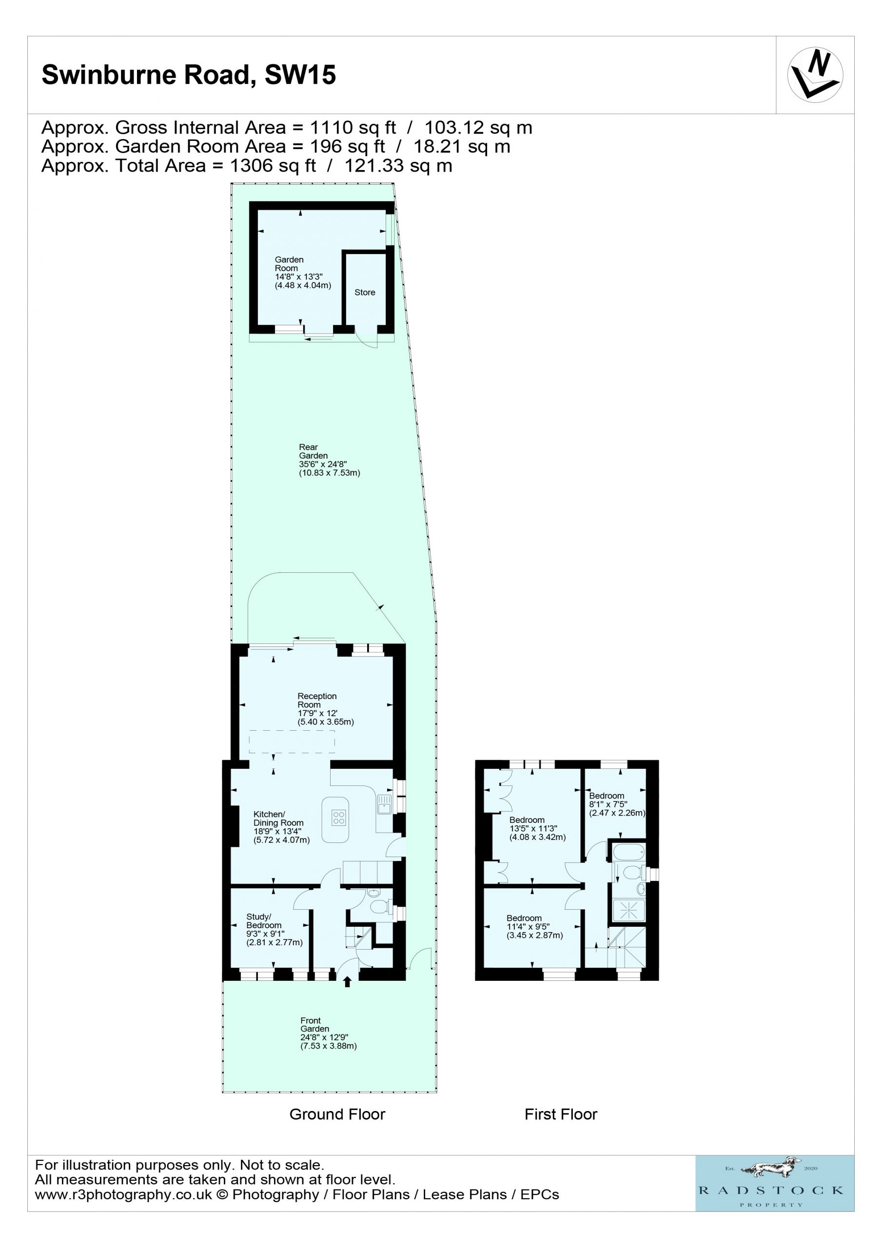
In immaculate condition throughout, on the ground floor there is a large open-plan kitchen/reception room which leads to a near 50ft south facing garden which has a garden office. There is also a study/fourth bedroom and a cloakroom. Upstairs there is a master bedroom and two further double bedrooms served by a family bathroom. Subject to the necessary planning consents there is potential to extend into the loft.

Bedrooms: 3 to 4
Bathrooms: 
Reception Rooms:
1
Size: 1,100 sq ft
Outside Space: Garden
Parking: Resident Parking Permit
EPC Rating: TBC
Tenure: Freehold
Council Tax Band:
E (Wandsworth Council)

ADDITIONAL INFORMATION

Swinburne Road is located within the ever-popular Dover House Conservation area. Transport links are from Barnes mainline station which provides regular trains to Waterloo, and the 430 bus route towards Central London. Putney Heath and Richmond Park are close by as is the private Roehampton Club.