Old Library Apartments, Battersea High Street, SW11

Radstock Property > London (FOR SALE) > Old Library Apartments, Battersea High Street, SW11

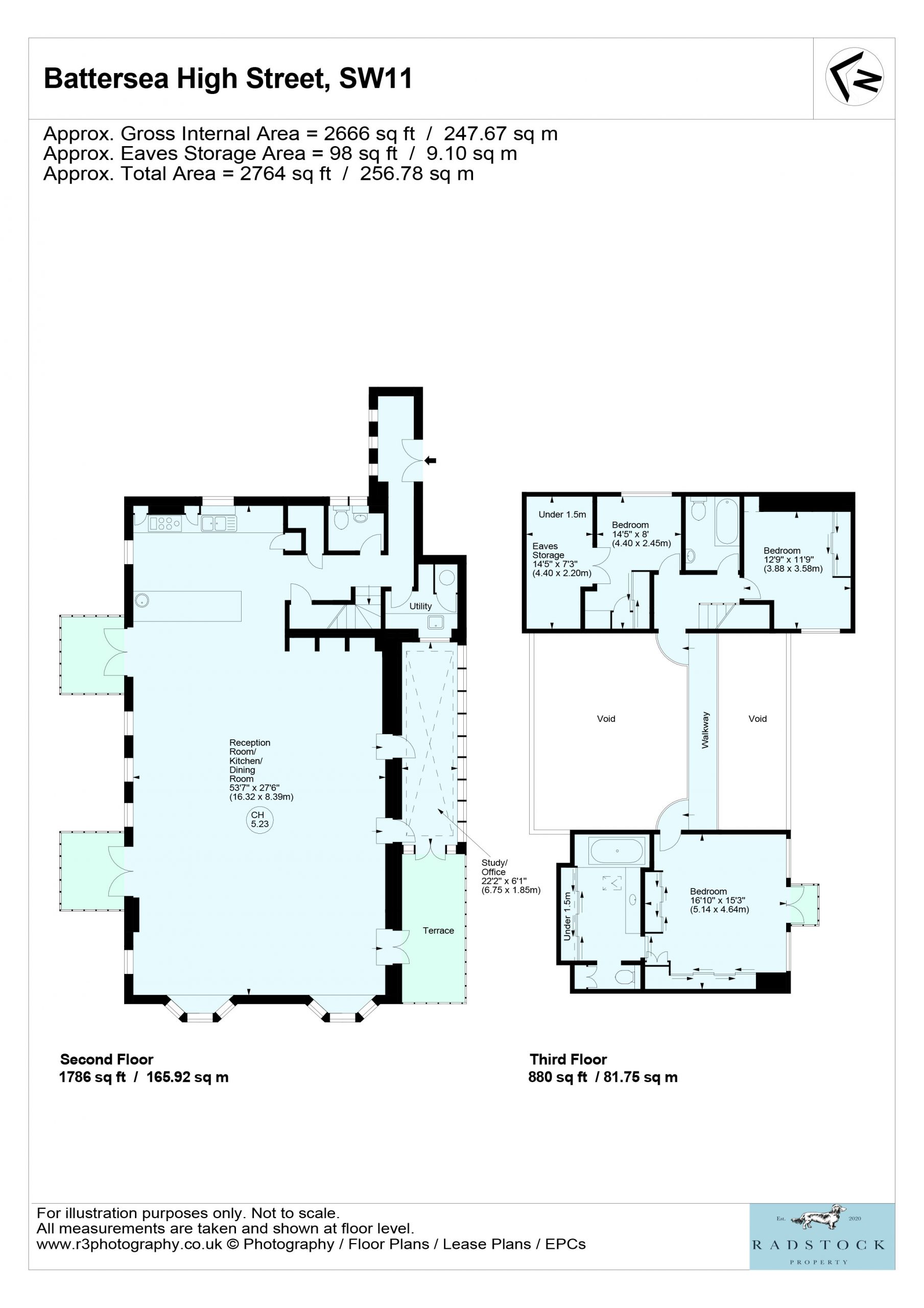
OLD LIBRARY APARTMENTS, BATTERSEA HIGH STREET, SW11

£3,000,000

A spectacular split-level three bedroom flat of circa 2666 sq ft with unrivalled entertaining space in Old Library Apartments, SW11.

Naturally bright throughout, on the second floor there is a huge open plan kitchen/reception/ dining room with bespoke wooden floors, exposed brick and double doors leading out onto two private balconies. There is also a conservatory spanning the width of the reception which is currently being used as a study. The modern integrated kitchen has industrial style units, built in appliances, a pantry and breakfast island. There is also a utility room and guest WC.

On the upper level, the floating gallery above the reception room leads to the master bedroom which has built in wardrobes, an en suite bathroom, and double doors opening out onto a small balcony. There are two further double bedrooms, both with built-in wardrobes served by a family bathroom. The flat also comes with access to a communal garden and two off-street parking spaces.

Bedrooms: 3
Bathrooms: 2 (1 en suite)
Reception Rooms:
1
Size: 2,666 sq ft
Outside Space: Balcony & Communal Gardens
Parking: Off Street Parking
Service Charge: £8,757 pa
EPC Rating: D (Potential B)
Tenure: Share of Freehold 
Council Tax Band:
G (Wandsworth Borough Council)

ADDITIONAL INFORMATION

Old Library Apartments is a private gated development off Battersea High Street, close to Battersea High Street and Thomas’s school and L’Ecole de Battersea. Transport links are from Clapham Junction which provides mainline links to Victoria and Waterloo, as well as several bus routes in to Central London. There is a wide range of local shops, bars and restaurants and the open space of Battersea Park is close. Battersea Bridge and Albert Bridge provide access north of the river to the Kings Road.