Inworth Street, SW11

Radstock Property > Let > Inworth Street, SW11

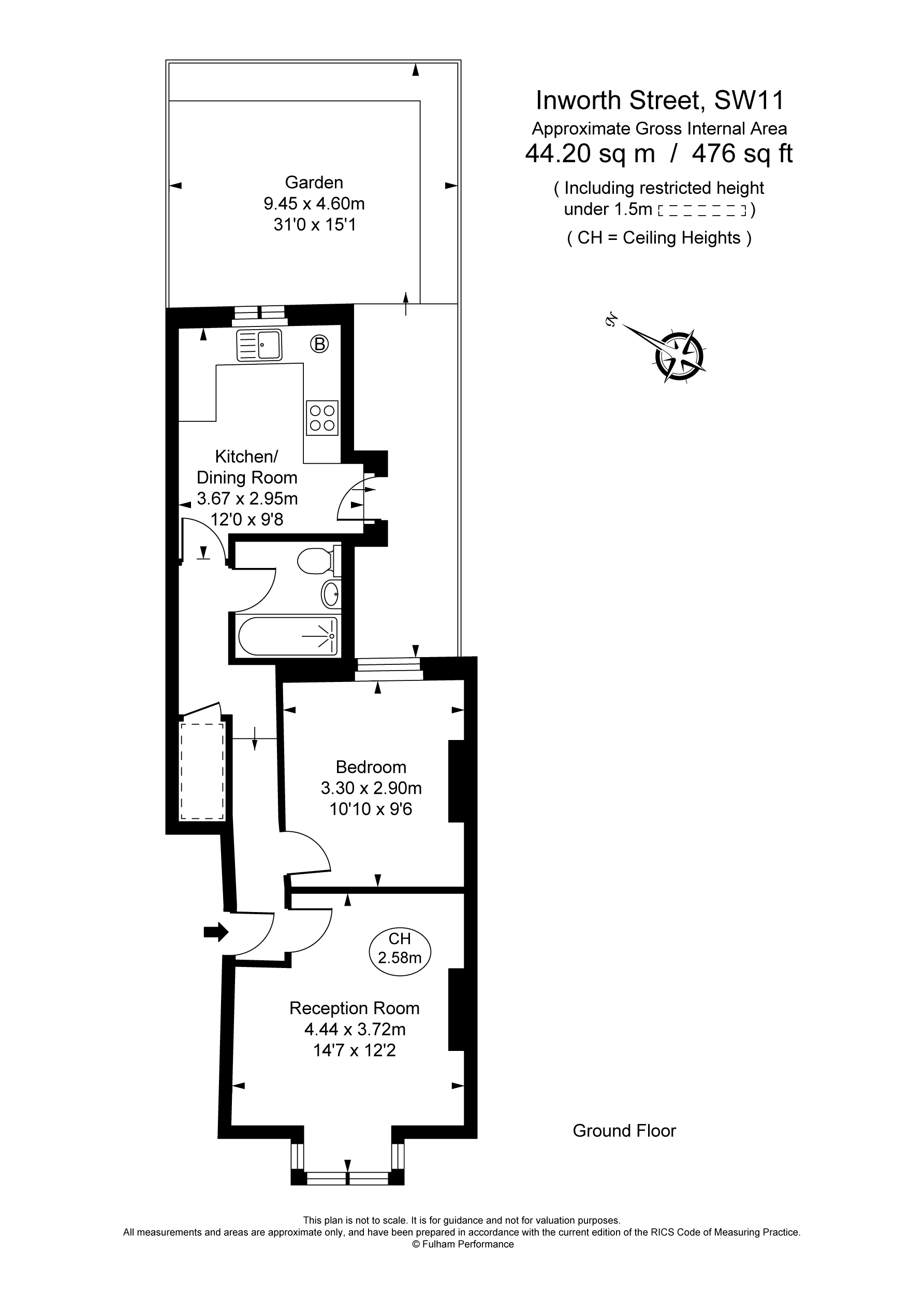
INWORTH STREET, SW11

£404 per week

Situated in a sought-after residential area in Battersea, this charming ground floor apartment offers a perfect blend of modern comforts and period features. The property comprises a spacious bedroom, a well-appointed bathroom, a cosy living room, and a fully equipped kitchen. The apartment comes either part-furnished or unfurnished, giving you the flexibility to make it your own. One of the highlights of this property is the private garden, providing a tranquil outdoor space to relax and entertain guests. Additionally, residents benefit from permit parking, ensuring convenience and peace of mind.

Bedrooms: 1
Bathrooms: 1
Reception Rooms:
 1
Size: 476 sq ft
Parking: Resident Parking Permit
Outside Space: Garden
Part Furnished/Unfurnished
EPC Rating:
D (Potential C)
Council Tax: D (Wandsworth)

Available: Immediately

ADDITIONAL INFORMATION

Inworth Street is well located for the shops, bars and restaurants on Battersea Park Road and Clapham Junction is a short walk away. Battersea Park is close by offering 200 acres of recreational space. There are excellent local transport links in the area with a number of bus routes running over Battersea Bridge and along Battersea Park Road as well as mainline train services from Clapham Junction.