Erpingham Road, SW15

Radstock Property > London (FOR SALE) > Erpingham Road, SW15

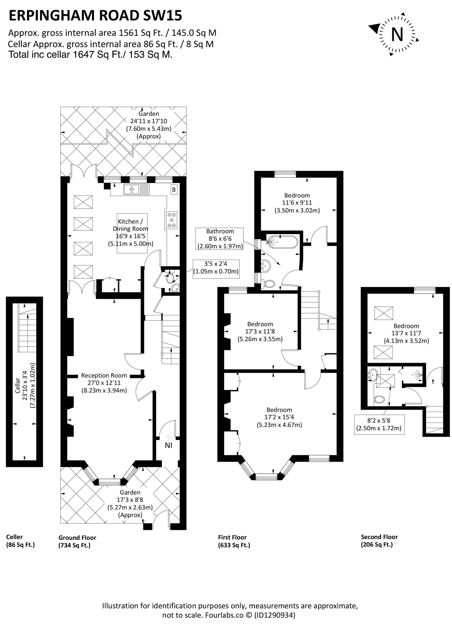
ERPINGHAM ROAD, SW15

£1,495,000

This delightful family house comprises four bedrooms with two complimenting bathrooms. The house is arranged over three floors and features a 27′ x 12’11 double reception room with wooden floors, fireplace, bay window and a tv snug area with doors to the kitchen. The kitchen/dining room is fitted with a beautiful hand crafted Mark Wilkinson replica kitchen – the original model is called Cook’s kitchen. The garden has an open aspect with a patio area for summer al fresco dining and is easily maintained. The upper floors comprise four bedrooms with a complimenting bathroom and shower room; the master bedroom has wooden floors, shutters and fitted cupboards. Additional storage is found in the loft and cellar and there is a useful downstairs wc.

Bedrooms: 4
Bathrooms: 2
Reception Rooms:
1
Size: 1,647 sq ft
Outside Space: Garden
Parking: Resident Parking Permit
EPC Rating: D (Potential B)
Tenure: Freehold
Council Tax Band:
G (Wandsworth Borough Council)

ADDITIONAL INFORMATION

Erpingham Road is a highly sought after address close to the facilities of the Lower Richmond Road with its great selection of shops, restaurants and cafes. The highly regarded All Saints school is a short walk away as is the 22 bus route to Piccadilly. Putney mainline station, Putney Bridge underground and the river taxi are close by. The shopping of Putney High street including the recently re opened M&S is a short walk, as is Barnes itself.