Elton Road, KT2

Radstock Property > For Sale > Elton Road, KT2

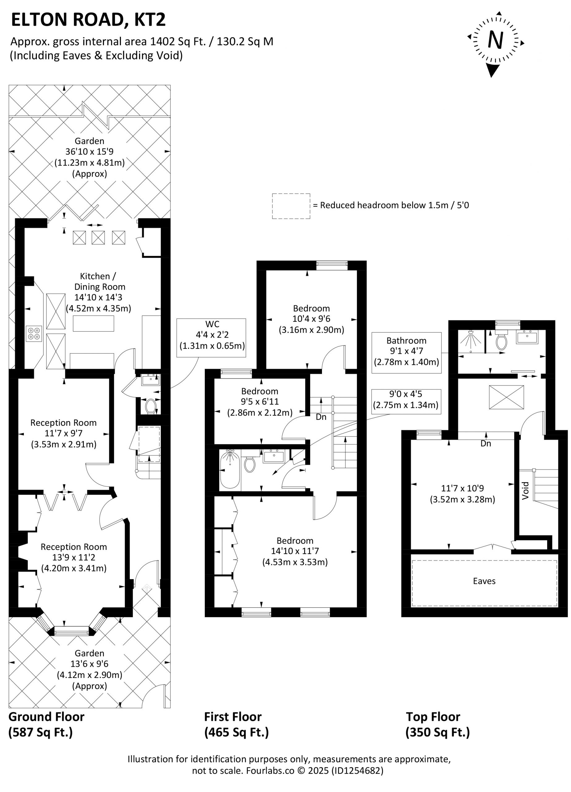
ELTON ROAD, KT2

£950,000

A stunning, refurbished and beautifully presented Victorian mid terraced family house arranged over 1400 sq. ft, fully extended into the loft, side and arranged over three floors.

The property provides a wonderful blend of modern living and privacy with plenty of light and bright space, perfect for a growing family. A stunning well fitted, fully extended 14’ family kitchen breakfast room opens on to the private, south facing 36′ garden through bi-fold doors. Located mid terrace on this delightful no-through road, the accommodation comprises two intercommunicating reception rooms and a guest cloakroom, There are four bedrooms upstairs, and two luxury bathrooms.

Bedrooms: 4
Bathrooms: 
Reception Rooms:
2
Size: 1,402 sq ft
Outside Space: Garden
Parking: Resident Parking Permit
EPC Rating: D (Potential C)
Tenure: Freehold
Council Tax Band:
D (Kingston upon Thames)

ADDITIONAL INFORMATION

The property is in a prime location, close to many outstanding schools including Alexandra Primary, Tiffin for Girls and Grey Court Academy. Elton Road is well located for the wonderful wide expanses of Richmond Park and the Thames tow path, both ideal for family walks and magical cycle rides. Kingston Town Centre is nearby, with its numerous shopping facilities, restaurants, and regular transport links to Waterloo.