Drakefield Road, SW17

Radstock Property > Let > Drakefield Road, SW17

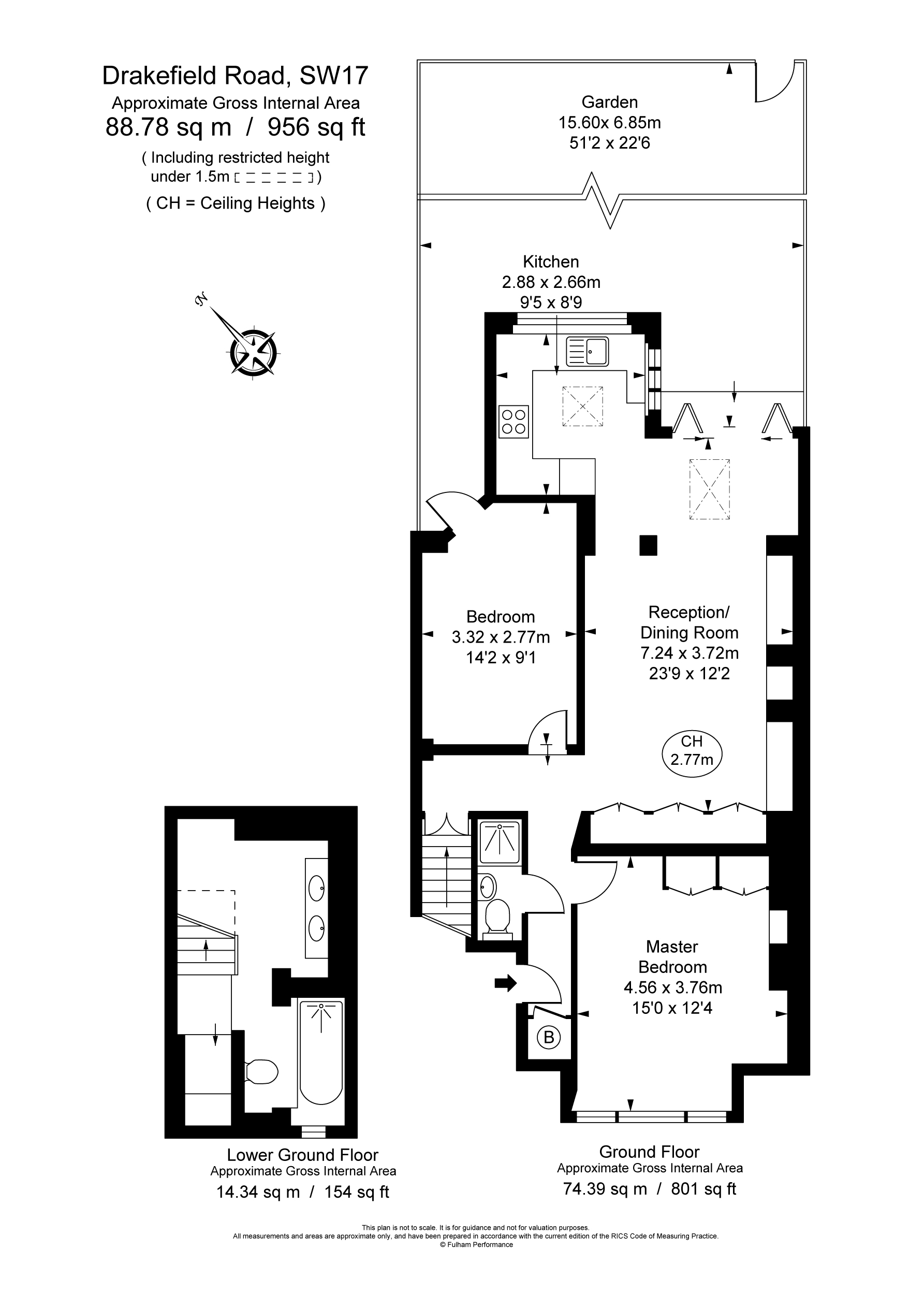
DRAKEFIELD ROAD, SW17

£692 per week

This charming property boasts 2 bedrooms, a reception room, and 2 bathrooms, offering a comfortable and stylish living space. The apartment is available as either part-furnished or unfurnished, giving you the flexibility to make it your own. The property features a lovely garden, perfect for enjoying the outdoors in the comfort of your own home. With a period style dating back to pre-1945, this apartment offers character and charm in a convenient location. Situated in a sought-after area, residents can enjoy the benefits of a peaceful neighbourhood while still being close to local amenities and transport links

Bedrooms: 2
Bathrooms: 2
Reception Rooms:
 1
Size: 956 sq ft
Parking: Resident Parking Permit
Part furnished/Unfurnished
EPC Rating:
C (Potential C)
Council Tax: D (Lambeth Council)

Available: Immediately

ADDITIONAL INFORMATION

Drakefield Road is located close to Tooting Bec and is a quiet residential street just a short walk to Tooting Bec Common and Tooting Bec underground station. Also offering excellent bus routes to Clapham Junction and Chelsea.