Cromford Road, SW18

Radstock Property > London (FOR SALE) > Cromford Road, SW18

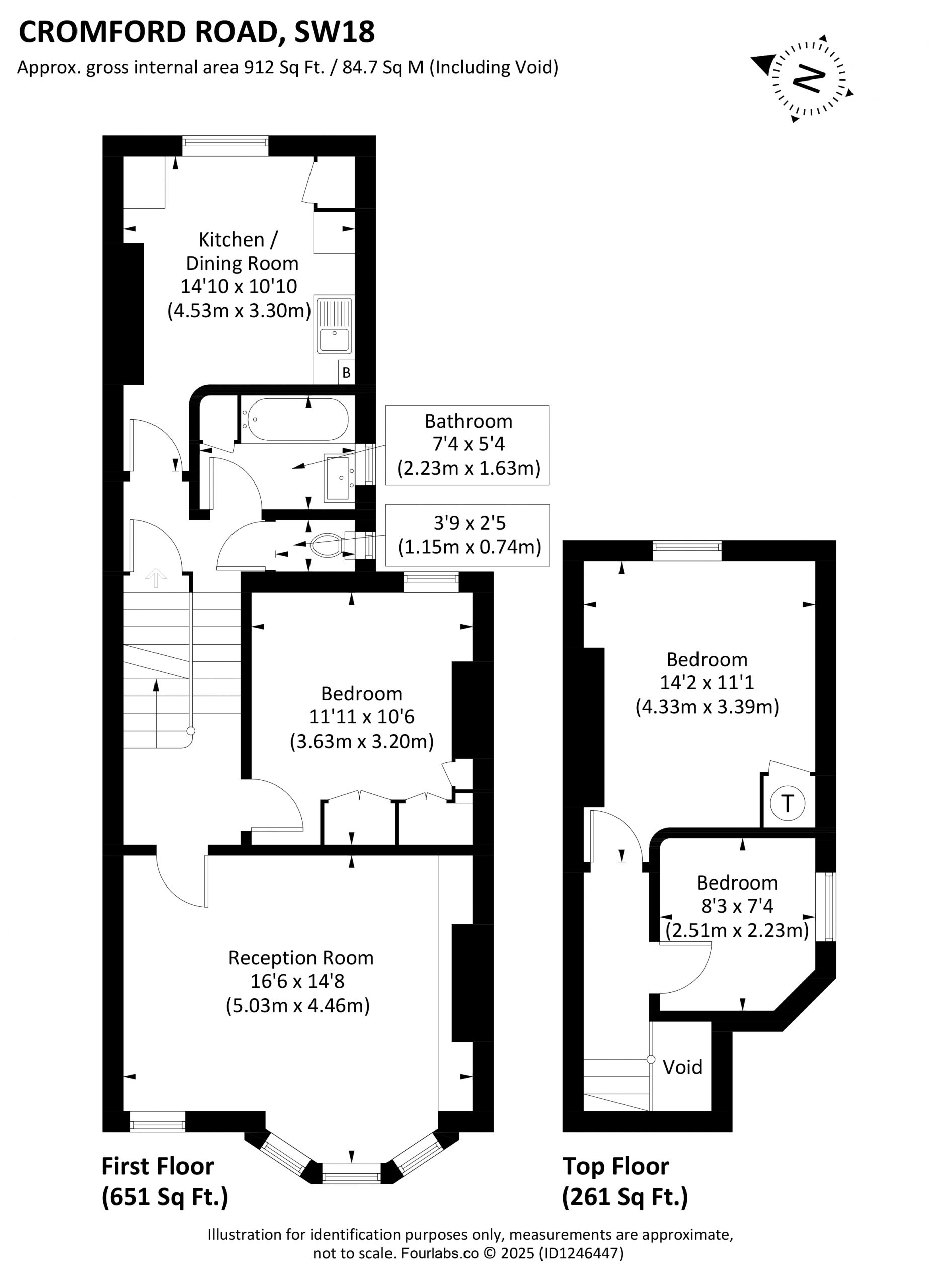
CROMFORD ROAD, SW18

£625,000

This is a wonderful opportunity to acquire an unmodernised three bedroom flat(approximately 912 sq ft) with accommodation arranged over the top two floors of a period property. Located on a quiet residential road close to the shopping and transport facilities of Wandsworth and Putney and a short walk to Wandsworth Park. The flat is arranged over two floors with a spacious and light feel. The reception room, with a splay bay window is a generous (16’9 x 15′) ideal living and entertaining space. The flat provides the opportunity for an incoming purchaser to modernise the property to suit their individual needs.

Bedrooms: 3
Bathrooms: 1
Reception Rooms:
1
Size: 912 sq ft
Parking: Resident Parking Permit
EPC Rating: TBC
Tenure: Leasehold (with circa 150 years remaining)
Council Tax Band:
E

ADDITIONAL INFORMATION

Cromford Road is a quiet residential road found between West Hill and Oakhill Road. It is ideally positioned for easy access to East Putney underground station and equidistant between Wandsworth Town and Putney mainline stations. Local shops abound on West Hill and Upper Richmond Road in addition to the shops, restaurants and cinemas of Wandsworth town and the A3 is a short drive.