Bendemeer Road, SW15

Radstock Property > For Sale > Bendemeer Road, SW15

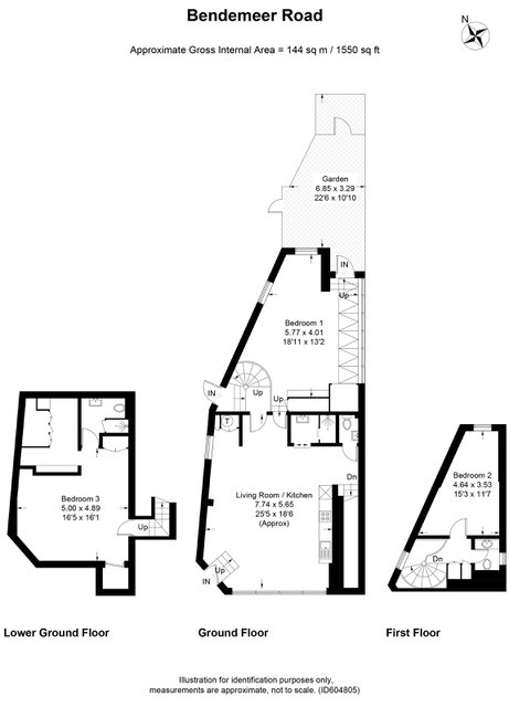
BENDEMEER ROAD, SW15

£800,000

A beautifully presented, spacious and individual corner property (approx 1508 sq ft) situated close to the river (with partial views). The property is being sold along with the freehold.

The property is arranged over three floors of this end of terrace period property with generous proportions and a very light and spacious feel throughout. In addition there is a delightful walled garden.

The flexible accommodation comprises a large 25’1 x 23’4 open plan reception room, and a dining room which gives access to the garden and could alternatively be used as a third bedroom. There is a master bedroom with separate walk in wardrobes and en suite shower room and a second bedroom with shower/wc. The property was once the creative studio for Jim Henson (the creators of The Muppets) and has since been thoughtfully modernised to include an air-source heat pump for both heating and air-conditioning, maximising light, built in Bose speakers and will include curtains and blinds as fitted.

Bedrooms: 2 to 3
Bathrooms: 2 (1 en-suite)
Reception Rooms:
1
Size: 1508 sq ft
Outside Space: Garden
Parking: Resident Parking Permit
EPC Rating: E (Potential C)
Tenure: Freehold
Council Tax Band:
D (Wandsworth Council)

ADDITIONAL INFORMATION

Bendemeer Road is located between the Lower Richmond Road and the river. It is a quiet residential road ideally positioned for the local shops, restaurants and cafes in addition to the shopping facilities Putney High Street. The 22 bus runs to Piccadilly Circus – the Uber water taxi makes for an easy commute to the City, and Putney Bridge and East Putney tube stations are a short walk away along with Putney Mainline station. Delightful walks abound including the river walk to Hammersmith and the Wetland Centre and the open spaces of Wandsworth and Richmond Park are close by.