Beaufort Close, SW15

Radstock Property > London (FOR SALE) > Beaufort Close, SW15

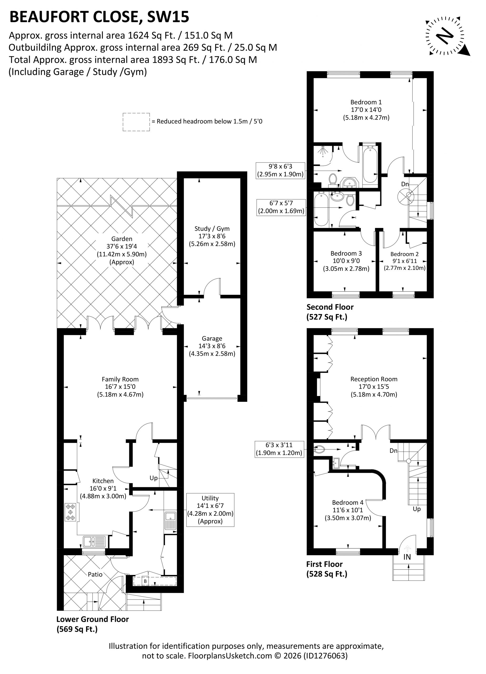
BEAUFORT CLOSE, SW15

£1,200,000

An impressive three storey, four bedroom family house situated in this prestigious gated development on Putney Heath.

This attractively presented family home benefits from a 24-hour concierge, off street parking and a double length garage. The accommodation is arranged over three floors and comprises four bedrooms and two bathrooms. On the lower floor is a fully fitted kitchen breakfast room plus a 16′ family room which opens directly onto the south/west facing garden. From the garden there is access to the double garage, which is used as an office or perfect storage.

Bedrooms: 4
Bathrooms: 2 (1 en-suite)
Reception Rooms:
2
Size: 1,893 sq ft
Outside Space: Garden
Parking: Off Street Parking/Garage
EPC Rating: C (Potential B)
Tenure: Freehold
Service Charge: £520 pcm
Council Tax Band:
G (Wandsworth Borough Council)

ADDITIONAL INFORMATION

The house is located within walking distance of Putney Heath and the well regarded Telegraph Pub. There are amazing walks, cycle rides directly from the property to 460 acres of Wimbledon Common and the even more spacious 2000+ acres of Richmond Park, a magical place to live.

Transport links are found at Putney East Underground with services to Earls Court and onwards to the tube network. Putney Mainline station provides quick access into Clapham Junction and Waterloo.